Selected Works
Baldridge Architects Office / Baldridge Architects

Architects: Baldridge Architects
Location: Austin, TX, USA
Area: 1450.0 ft2
Year: 2013
Photographs: Casey Dunn
Location: Austin, TX, USA
Area: 1450.0 ft2
Year: 2013
Photographs: Casey Dunn

From the architect. This project is a small urban infill renovation located in Clarksville, the only mixed use neighborhood in Old West Austin, Texas. The structure serves as the offices for Baldridge Architects, a small architecture studio in Austin. The 1450 square foot renovation sits in an unassuming location amidst a parking lot along the principal two-lane commercial street the runs through Clarksville. Originally a concrete masonry unit warehouse glommed on to the neglected 1960s building of a television repair business, the reinvented structure serves not only as the firm’s home but also as a redirection from the “soft modern” instincts that prevail in Austin’s residential neighborhoods, and from the trendy surfaces that characterize its restaurants and commercial establishments.

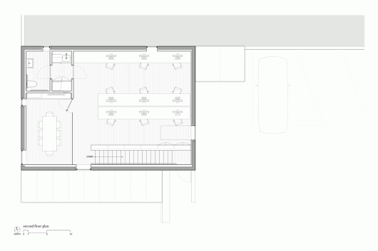
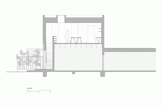
The project is small, comprising accommodations for ten designers, a conference room, kitchenette, bathroom and a materials library and lounge. In response to the image-driven pastiche predominating Austin’s current design landscape, the designers worked with a limited palette and a circumscribed footprint. The result is a stark form clad in smooth white plaster, adorned only by the rhythm of its irregular expansion joints (chosen to incorporate and make sense of the various elevational data inherited form the adjoining TV repair building). A single 3’ by 12’ window/skylight, its glazing flush to the exterior plaster, marks the front façade, acting as dynamic living signage for the firm.

Below, a materials library and lounge are accessed through a separate door, accommodating the messier elements of the architectural practice. A translucent awning covers the entries to the storage and to the rear entry of the adjoining business, allowing shelter from the elements and a space for its employees who often congregate beneath. Enclosures fabricated from irregularly spaced painted steel tubes and expanded mesh separate the entry from the service core of the TV Repair and provide a space to organize, if not completely hide, its refuse.

The interior is rendered simply in white, accented with bold cumaru flooring and cantilevered mahogany shelves. Coordinated reveals and flush base detailing turn back into the 18” deep walls – the net result of the exterior uninsulated cmu structure – to create the subtle illusion that the walls float above a 4” datum. The compact and pragmatic layout, museum-smooth surfaces, coordinated alignments and silent detailing act as persuasive counterpoints to the square-footage and amenity driven instincts that often accompany architectural clients when they first consider their own projects.

The project was delivered with a limited budget and the members of the firm, which previously operated as a design-build concern, each contributed his or her skills to build the space. In its inauspicious context, the structure sits unapologetic and simple, precise but effortless, striking but obvious.

- © Casey Dunn
- © Casey Dunn
- © Casey Dunn
- © Casey Dunn
- © Casey Dunn
- © Casey Dunn
- © Casey Dunn
- © Casey Dunn
- © Casey Dunn
- © Casey Dunn
- Floor Plan
- Floor Plan
- Section
- Section
- South Elevation
- East Elevation

















No comments:
Post a Comment
Please leave a comment-- or suggestions, particularly of topics and places you'd like to see covered